PriceList for 4 Container Home - Modified shipping container house . – HK prefab
PriceList for 4 Container Home - Modified shipping container house . – HK prefab Detail:
Product Video
Shipping container home fetures
Most of the work is completed done at factory for a fixed price. Delivery to the site, site preparation, foundation, assembly and utility connections are the only variable costs. That said, container homes can be completely prefabricated , and it will save a lot of cost to counstruct at site , but can provide the same comfortorable living space , we can install the floor heating , Air conditioner etc as per the client requested , and more over, if there is off grid , we can install the solar panel to provide electricity to operate the house . The shipping container house is encomic , fast built , comfrotable and enviromental-friendly .
Product description
1. Modified from new brand 2X 40f t HQ ISO standard shipping container.
2. Based on in-house modification, floor & wall & roof can all be modified to get good force resistance, heat insulation, sound insulation,moisture resistance; tidy and clean appearance, easily maintenance.
3. Delivery can be completely built-up, easy to transport, the outer surface and inner fittings could be built as your
own design color.
4. Save time to assemble it. Each container is finished built in factory , Just need to connect the modular together at site.
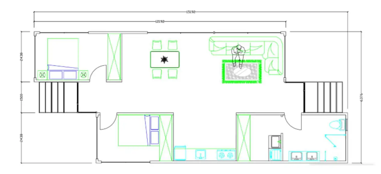
5. Floor plan for this house
6. Proposal for this modified luxury prefabricated container house
Product detail pictures:
Related Product Guide:
We insist over the principle of development of 'High top quality, Performance, Sincerity and Down-to-earth working approach' to supply you with exceptional services of processing for PriceList for 4 Container Home - Modified shipping container house . – HK prefab , The product will supply to all over the world, such as: Australia, Italy, Barbados, We will initiate the second phase of our development strategy. Our company regards "reasonable prices, efficient production time and good after-sales service" as our tenet. If you are interested in any of our products or would like to discuss a custom order, please feel free to contact us. We are looking forward to forming successful business relationships with new clients around the world in the near future.
By Elsa from United States - 2017.03.08 14:45
The supplier abide the theory of "quality the basic, trust the first and management the advanced" so that they can ensure a reliable product quality and stable customers.
By Dawn from Mecca - 2017.08.16 13:39









